Эргономика в квартире: как я стараюсь вписать все и не жить на складе
Этот текст написан в Сообществе, в нем сохранены авторский стиль и орфография
Необходимо отметить, что квартиру я проектирую и реализую для себя одной, поэтому отталкиваюсь исключительно от своих предпочтений.
Насмотревшись Pinterest я представляла свою будущую квартиру как с обложки интерьерного журнала. Но когда начала просчитывать сценарии жизни в таком пространстве, то поняла, что красивый и модный интерьер не равно функциональный. А т.к. я достаточно прагматичный человек, то для меня эргономика и удобство важнее красивой картинки.

Выделила важное для себя:
- минимизация визуального шума. Все, что можно закрыть — закрываем. Это касается полок, проводов от техники и т.д. Все это за закрытыми дверцами, в специальных нишах/коробах и т.д.
- обязательно организация рабочего места, т.к. 3 дня в неделю я работаю удалённо из дома
- обязательно наличие ванны
- функциональная кухня
- максимально возможное количество мест хранения
- разноформатное освещение и максимальное количество розеток под все сценарии жизни
- наличие доп. спального места для друзей которые могут остаться ночевать.
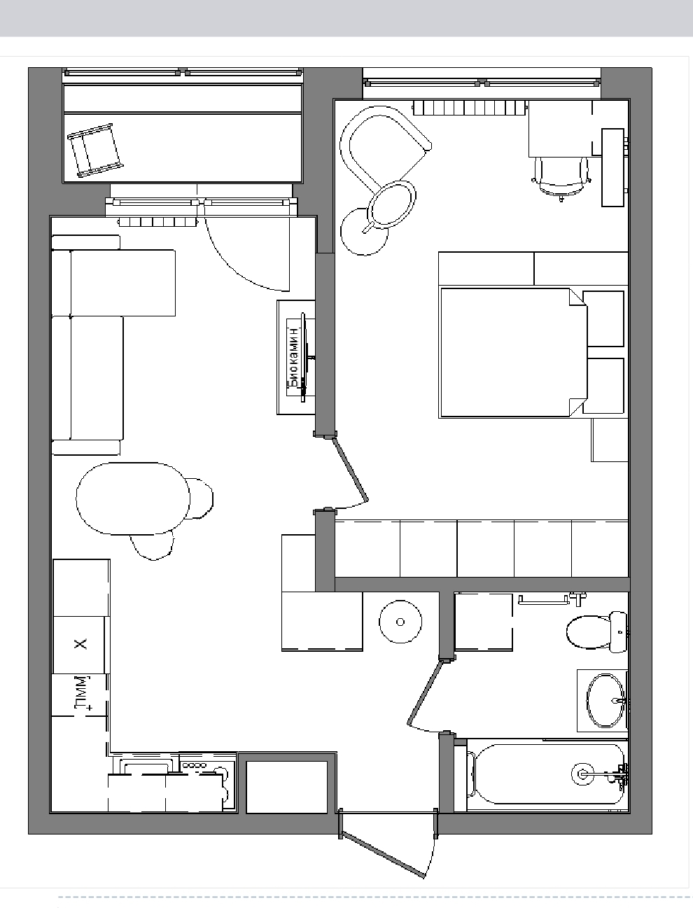
Изначально я нарисовала в Ремпланере несколько вариантов планировки. Мне не нравился предложенный застройщиком вариант с нишей под шкаф рядом с коробом вентиляции и 3 двери из коридора ведущие в разные помещения. Это визуально утяжеляло пространство в то время, как мне хотелось максимального количество света и пространства.
Дизайнер прислушалась к моему варианту и предложила планировочное решение на основе того, что мне понравилось. Мы около часа по видеосвязи обсуждали нюансы и я обозначила где оставляем предложенное, а где вносим правки.
Изначальное планировочное решение и коллажи зон на фото.







Из понравившегося:
- перенесли дверь спальни в зону гостиной, что позволило поставить в спальне вместительный шкаф во всю стену, а также избавило коридор от обилия дверей.
- Дверь в кухню-гостиную вообще решили не делать для того, чтобы оставить пространство более воздушным.
- В ванной комнате дизайнер предложила сделать скрытую полку-нишу около ванной для того, чтобы минимизировать визуальный шум от баночек/бутылочек с косметическими средствами.
Из того, что огорчило:
- я хотела расширить ванну за счет спальни, но, как оказалось так делать нельзя, т.к. это мокрая зона.
- У дизайнера мало опыта в планировках кухни и предложенный ей вариант с холодильником посреди кухни-гостиной показался странным. С учётом того, что я не хочу делать встроенный холодильник, то ставить его необходимо в угол за вентиляционный короб, чтобы он не бросался в глаза.
- При обмере замерщик не сделала обмерный план потолка, а там разведены и зафиксированы датчики дыма. И их расположение влияет на план освещения.
- Вариативность планировочных решений отсутствовала. Т.е. просто доработали тот вариант, котрый я изначально и предполагала. Хотелось "повыбирать", но, в принципе, лучше 1 оптимальный вариант, чем 10 неподходящих.
По результатам моей обратной связи по планировочному решению дизайнер ушла делать ведомость мебели/сантехники, чтобы с учетом конкретных позиций потом мы могли приступить к плану электрики/сантехники и далее по этапам



















