От «картинки» к реальности: боимся, но начинаем ремонт
Этот текст написан в Сообществе, в нем сохранены авторский стиль и орфография
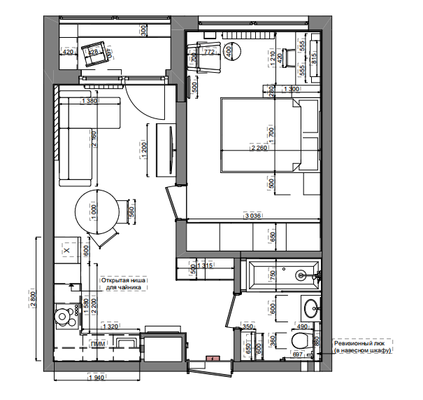
Мой план по обустройству своей квартиры приобретает конкретные очертания. В течении почти 2-х месяцев мы были на связи с моим дизайнером и вот у меня на руках завершенный дизайн-проект!
Я получила много хейта из-за того, что наняла начинающего дизайнера из региона и заплатила 50 000, а не московские 250 000 за весь дизайн-проект. Мне пророчили проблемы, "сырой проект" и другие кары небесные, но по итогу работы могу сказать, что дизайнер прислушивалась ко всем моим пожеланиям, несколько раз перерисовывала коллажи с расстановкой мебели и подготовленный дизайн проект имеет все необходимое наполнение для начала ремонта. Да, возможно всплывут какие-то нюансы во время самих ремонтных работ, но, предполагаю, что такое бывает почти всегда, т.к. это "живой процесс" и учесть все на 100% на этапе проектировки невозможно.
Мне понравилась получившаяся эргономика пространства: много света и не загроможденность мебелью, при этом достаточное количество мест хранения и продуманная планировка/освещение под разные варианты жизни. Теплая, природная палитра цветов и разноформатные текстуры (камень, букле, дерево)









Я довольна результатом. Теперь начинается самое интересное и финансово затратное — сам ремонт. Буду наблюдать, как "картинка" превращается в реальность.

















