Я коплю на баню
Этот текст написан в Сообществе, в нем сохранены авторский стиль и орфография
О себе
Я — Ольга, счастливый обладатель загородного дома!
Цель
Моя цель это строительство бани, очень хочу ее. В целом люблю воду, пар и обновление, смыть с себя всю накопленную энергию!
План действий
План действий таков: весной залить фундамент, и потихоньку начать идти к мечте, для реализации как минимум нужно 1,5-2 млн рублей.
Если не заморачиваться, то можно приобрести мобильную баню, а это значит, что соберем привезены к секции на месте, и уже в кратчайший срок мы будем в руках пара🙏, стоимость немного пониже и реализация во времени гораздо быстрее! Вообщем план таков🤞!
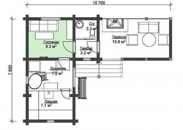
Пс: на первом фото мечта-планировка, на втором альтернатива долгому строительству😉! Идем к цели!🎯


Вот что еще мы писали по этой теме
Сообщество
Популярное за неделю

















