Какую квартиру взять в ипотеку женщине 45 лет, чтобы жить там одной: 25 или 30 м²?
Этот текст написан в Сообществе, бережно отредактирован и оформлен по стандартам редакции
Мне 45, планирую покупать свое первое жилье, буду жить одна. Ипотеку возьму на максимальный срок, но планирую выплачивать досрочно. Льгот нет, ставка стандартная.
В голове два варианта: студия 25 м² за условные 4 млн рублей или однушка 30+ м² за условные 6 млн.
Вот что я о них думаю. 25 м² — очень маленькая площадь. Но кредит за нее я выплачу за четыре-пять лет. 30 м² — это уже заметно больший кредит, не смогу вносить на досрок слишком много, выплачивать буду дольше. А это шесть-семь лет жизни, полной финансовых ограничений, что пугает. Зато в квартире 30 м² места больше.
Трудно принять решение. Часто советуют начинать с малого, но с учетом возраста есть вероятность, что это жилье и останется моим единственным. Получается, в перспективе ближайших лет важнее финансовая нагрузка, но в перспективе всей жизни как будто весомее выглядят квадратные метры.
Было бы интересно послушать мнения и доводы более опытных владельцев недвижимости.
Все финансовые советы уже дали в комментариях, а я предлагаю зайти немного с другой стороны.
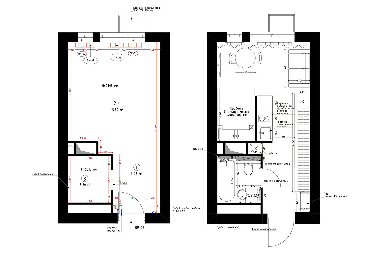
Выбирая квартиру, важно смотреть не только на метраж, но и на планировку. Есть варианты 25—27 м², которые можно спланировать уютно и удобно, а есть 30-метровые студии, в которых, как ни старайся, комфортное пространство не получится.
На что обратить внимание в целом
Изоляция кухни. Возможность отделить кухню от спальной зоны — самое важное в планировке квартиры. «Спать на кухне» в студии неприятно, это постоянный раздражитель, тяжело расслабиться.
Так что, выбирая квартиру, обратите внимание, где находятся выводы воды для кухонного гарнитура. Если они предполагают только один вариант расположения, надо смотреть на общую планировку: куда вы поставите кухню, куда — кровать. Изолировать кухню можно и в небольшой студии, главное — понимать, как это сделать.


Бытовые привычки. Если вы любите много готовить, микростудия с маленькой кухней в коридоре может не подойти. В этом случае стоит выбрать вариант, куда влезет полноценный гарнитур.
Если у вас в целом много вещей, особенно больших, например пианино, сноуборд, или гардеробу нужно отдельное пространство, лучше выбрать квартиру, большую по площади: там просто физически можно организовать дополнительные места для хранения.


Правильная геометрия. Часто студии и однушки бывают с неправильной геометрией. Это сразу минус: чем меньше пространство, тем сложнее в нем реализовать нормальную планировку, а тут еще и углы не прямые.
Геометрию могут нарушать не только странные углы, но и двери в неожиданных местах, особенно там, где их нельзя перенести, например дверь на балкон или в ванную. Перед тем как купить квартиру, можно мысленно расставить в планировке мебель и прикинуть, все ли помещается и будет ли в этом пространстве комфортно находиться.


Как понять, подойдет ли вам квартира по площади
- Съездить и посмотреть: на фото все кажется просторнее, чем есть на самом деле. Лучше не покупать квартиру не глядя.
- Взять планировку и в простом редакторе прикинуть, где что будет стоять и умещаются ли все ваши вещи в эту площадь. Иногда планировки от застройщика бывают сносными, а иногда лучше посмотреть на дизайнерские идеи, чтобы адаптировать их к своему пространству.
- Посчитать, во сколько примерно обойдется ремонт, если он нужен. Иногда есть смысл взять квартиру побольше, чем кроить крохотную студию. Надо определиться, что для вас первичнее: жить в красоте и комфорте сразу или вы готовы потерпеть сколько-то лет и потом сделать ремонт.






















