
Свой дом по цене однушки: вся правда о модульном барнхаусе за 5,8 млн рублей
Проект «Барн 65» от подрядчика из Тюмени — это классический модульный дом, но в модном сарайном стиле.
Интерес к стилистике барнхауса не ослабевает. В 2021 году я работал на предприятии, которое производит подобные дома. Их покупателями были турбазы, загородные отелей и глэмпинги.
Но дом перед нами предполагает строительство в ипотеку с помощью эскроу-счета, а значит, это претензия на вариант для постоянного проживания. Посмотрим внимательнее.
О проекте и подрядчике
Проект доступен в 11 регионах европейской части РФ и западной Сибири и представлен ООО «Пока нет дома» с юридическим адресом в Тюменской области. Компании три года, то есть появилась она, когда тема барнов была на пике популярности.
На строим.дом.рф у фирмы 39 проектов и шесть договоров на строительство с эскроу-счетами.
Сайт компании информирует, что подрядчик специализируется на модульных домах и доставляет их в регионы. Большинство объектов в каталоге — дома для глэмпингов, турбизнеса и аренды.

Модульный дом — это хорошо или плохо
Модульный дом собирают из готовых модулей-секций, которые делают на заводе. Секции привозят на грузовых платформах и устанавливают на заранее сделанный фундамент. То есть модульные дома не то чтобы строят — их производят и ставят на участке.
Работать на заводе можно в любое время года и хоть в три смены. Не надо пилить доски под навесом, когда на улице темно, сыро и зуб на зуб не попадает. Не требуется каждое утро обметать от снега скользкие строительные леса, прятать от дождя стройматериалы и ждать погоды, чтобы покрасить фасады.
На заводе доски не валяются в грязи, утеплитель не мокнет под дождем, а строители не тянут резину и не ждут волшебных слов от прораба.

Как правило, модули привозят на участок уже с отделкой, установленной кухонной мебелью и сантехникой. Остается только поставить дом на фундамент, состыковать модули, подвести электропроводку и трубы. Если дом из одного модуля — утром поставили, вечером можно заезжать. На сборку дома из нескольких модулей уходит два-три дня.
Если строить обычный каркасный дом, на внутреннюю отделку и обстановку времени уходит столько же, сколько и на стройку. Приходится принимать множество решений вплоть до подбора дверных ручек и штор, гармонирующих с обоями.
Модульный дом приходит уже с интерьером. В этом преимущество для турбизнеса: через месяц-другой после заказа на участке стоит готовый меблированный дом, который прямо «с колес» начинает приносить доход.
Вдобавок модульные дома устанавливают на облегченные фундаменты, например винтовые сваи. А можно и без фундамента, просто на отсыпанную площадку. То есть юридически такое строение может быть как капитальным, так и некапитальным. Во втором случае его можно поставить в лесу, где капстроительство запрещено.
В отдельной статье в Т—Ж я рассказывал, как устроены модульные дома, и перечислял их минусы. Основной — сложность доставки. Если дом большой и состоит из нескольких модулей, размытая грунтовка, узкая сельская улочка или провода над дорогой могут сорвать весь проект. Поэтому до того, как покупать такой дом, нужно осмотреть дороги — не возникнет ли препятствий для его доставки, не придется ли за свой счет делать дорогу до участка.
Кроме того, ограничены варианты планировок: модули должны поместиться на грузовик, который поедет по общим дорогам с мостами и путепроводами над ними, и от низких потолков в таком доме никуда не деться.
Из-за небольших площадей будут проблемы с местами для хранения и техпомещениями. Если только не покупать еще один модуль для этого или не делать какую-то пристройку.
Барнхаус — это стильно или слишком вычурно
В оригинальном варианте барнхаус — это дом-сарай или дом-ангар, сочетающий минимализм в отделке, простые формы и экологичные материалы: открытые балки под потолками, облицовку из амбарной доски и симметричные двускатные крыши без свесов. У барна непременно массивные входные двери, в которые можно заехать на тракторе.
Но современный барн другой. Он предполагает панорамное остекление фронтонов и облицовку из металлического фальца или профлиста цвета «графит», который раньше был характерен не для сельских сараев, а для гаражных кооперативов и промышленных объектов. Водостоки, отливы, рамы окон и прочие фасадные детали делают такого же цвета.

Что с планировкой
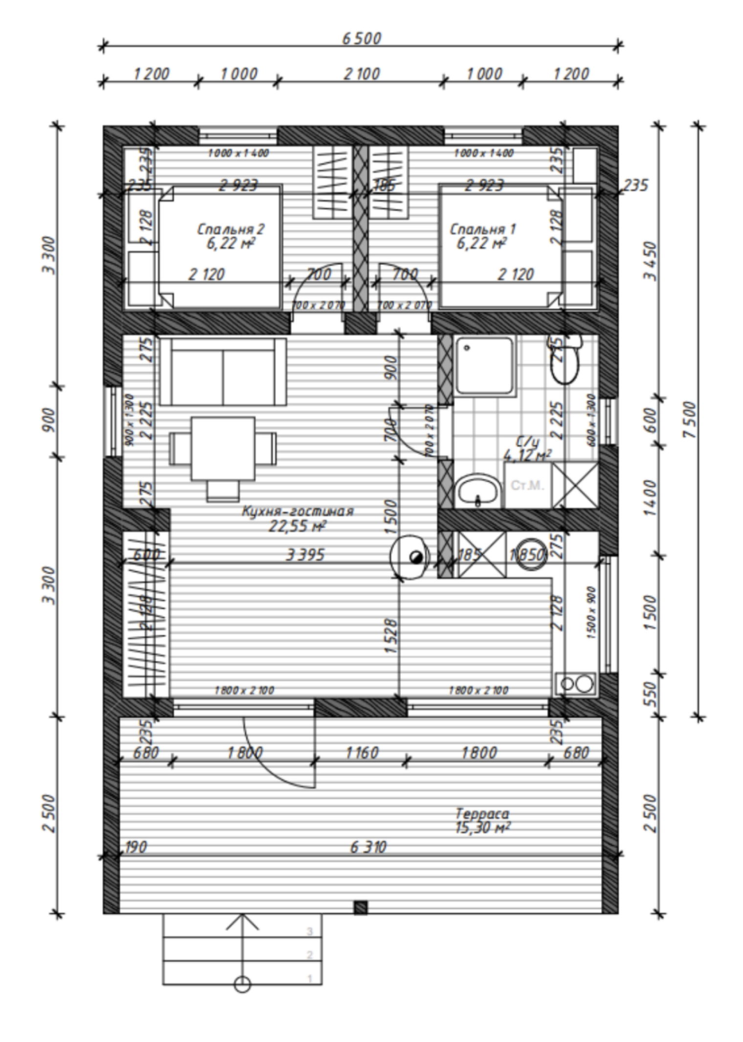
На сайте строим.дом.рф представлена не красивая планировка из рекламного каталога, а план из проектной документации. Это хороший признак, как и то, что все размеры, включая толщину перегородок, ширину помещений, проходов и проемов, указаны в миллиметрах.
Сразу начинаешь верить, что все технические решения педантично просчитаны. Ведь мы уже сталкивались с ситуациями, когда в планировках нарисованы кровати детских размеров, чтобы комната казалась побольше.
На плане также видно, что «Барн 65» — это три модуля с транспортными габаритами 40-футового контейнера плюс терраса. То есть доставка будет относительно недорогая, для перевозки достаточно еврофуры и можно обойтись без неповоротливых низкопольных тралов. Но и все внутренние размеры соответствующие: ширина спаленок — 2,13 м, высота помещений — 2,15 м. Зато это честные размеры — с учетом теплоизоляции и обшивок.
Мы уже видели проекты, в которых размеры по факту меньше, чем на плане, поскольку не учтена внутренняя облицовка. Здесь же все без жульничества и манипуляций.

В спальни две кровати шириной 1,6 м — это стандартная ширина матраса, сама кровать шире. Обе впишутся с трудом, и останется лишь узкий проход вдоль окна. Но кровати 1,4 м войдут без проблем.
Санузел немаленький, он заметно больше, чем в типовой хрущевке. Даже ванну вписать можно. Унитаз через стенку от спальни смущает, но не очень: все-таки между кроватью и ним двойная стенка.
Пространство «кухня — холл — гостиная» проще некуда: готовить в одном углу, столоваться в другом, по диагонали. Помещение небольшое, и хождения не будут проблемой.

Технические решения
Крыша. Крыши без свесов в барнхаусах и модульных домах — не самое сильное место. Верхние части фасадов постоянно намокают от косых дождей даже при небольшом ветре.
С одной стороны, как намокнут, так и высохнут. С другой, на одной из фотографий построенного дома на сайте компании мы увидели, что эту проблему попытались решить, прикрыв верхнюю часть фасадной стены полосой из профлиста. Это фото выше, где мы говорим о террасе. Не элегантно, но лучше, чем полностью зашитые профлистом стены.
Фундамент. В основе модульного дома жесткая рама, чтобы он не сломался при неаккуратной транспортировке и переносе краном. К фундаменту требования минимальные. В качестве штатного варианта предусмотрены винтовые сваи. Для постоянного проживания за городом так себе. Но для гостевого дома на лесном ландшафте с перепадами высот, который не хочется портить, — самое то. Опять же, без ограждения террасы не обойтись.
Отопление. Электроконвекторы с термостатами — это самый малобюджетный вариант. Также на плане присутствует металлическая печь в гостиной.
Информации о толщине и характеристиках теплоизоляции нет. Указана только толщина наружных стен — 235 мм. Вероятно, толщина базового слоя теплоизоляции между стойками каркаса здесь не больше 150 мм. Для средней полосы подойдет, но для регионов с морозными зимами — вряд ли.
С другой стороны, комнатки маленькие, потолки невысокие — прогреть легко. Для суровых климатических условий такой дом можно дополнительно утеплить изнутри. Правда, придется пожертвовать еще несколькими сантиметрами высоты потолка и ширины и без того небольших комнат.
Коммуникации. Ни в проекте, ни на фото построенных домов мы не увидели вентиляционных зонтов на крыше — над санузлом и кухней. То есть в базовом варианте вентиляция как таковая не предусмотрена. Это говорит о том, что в таком формате дом не рассчитан на постоянное проживание.
Если ее не сделать и при этом жить постоянно и каждый день готовить на кухне, деревянная отделка рискует впитать все застарелые кулинарные запахи. В санузле хотя бы окошко есть. Но для комфортного проживания этого тоже недостаточно.
Также отсутствуют даже намеки на техническое помещение. Соответственно, варианта подключить водопровод два. Или централизованное, или в дачном формате: в колодце — погружной насос, в доме — реле, которое управляет его подключением. В принципе, для дачи вариант годный. Но на зиму такую систему лучше разбирать и сливать воду, чтобы вода в трубах не замерзла.
Реальна ли цена
Смету подрядчик не представил. Указана цена — от 5 769 712 ₽ в состоянии чистовой отделки. В нее входят все финишные покрытия и сантехника.
На сайте подрядчика цены ниже, а подробностей больше: от 4 658 353 ₽ — дом за наличные и без фундамента. В ипотеку такая же комплектация обойдется в 5 448 353 ₽, с фундаментом (винтовые сваи с обвязкой) — 5 628 353 ₽. То есть среднестатистический свайный фундамент оценивается в 180 000 ₽ — похоже на правду.
Из плюсов: минимальные затраты на организацию отопления — на весь дом должно хватить трех-четырех конвекторов с термостатами на 1 кВт.
Что в итоге
Это не дом для постоянного проживания. Даже семье с одним ребенком здесь будет тесно. Общая площадь 54,4 м², но 15,3 м² — это терраса. Жилая площадь — всего 39,1 м².
Более того, проект не подойдет для регистрации в качестве частного дома. Хотя бы из-за низких потолков: минимум для жилых помещений в ИЖС — 2,5 м . У нас — лишь 2,15 м. Невозможно поставить на учет дом — нельзя в нем и прописаться. Более того, непонятно, как проект прошел проверку для схемы в ипотеку по эскроу и какой банк захочет дать кредит, если заранее понятно, что дом не получится зарегистрировать как ИЖС.
В общем, это дорогая дача или гостевой дом под аренду. И на зиму без присмотра его не оставить из-за возможных отключений света и замораживания труб с водой. Замерзнет вода — трубы разорвет. На турбазах и в глэмпингах это головная боль управляющих компаний. В дачных поселках, деревнях и частном секторе, видимо, придется рассчитывать на соседей или самостоятельно сливать воду из труб перед каждым отъездом, но это непросто.
При этом дом получился очень рациональным: тюменцам удалось выжать максимум из формата модульного здания.
В качестве плюсов выделим следующие:
- Конечная цена предполагает полную внутреннюю отделку и поэтому вполне демократична.
- Сжатые сроки строительства, предсказуемый результат и минимум рисков.
- Дом можно ставить на участках с рельефом и ценной растительностью.
- Если потребуется, дом можно перевезти на другое место.
Минусы по большей части обусловленные не самим проектом, а его форматом:
- Низкие потолки, спальни-каюты.
- Терраса без ограждений.
- Дом не потерпит аварийных отключений электричества в мороз.
- Нужно обустраивать подъездные пути для доставки модулей.
- Ликвидность такого дома через 10—20 лет, скорее всего, будет низкой. Вряд ли его удастся выгодно продать, и не факт, что удастся даже получить цену, по которой покупали.
Самый главный плюс такого дома — он модный и в тренде. Но одновременно это же и минус: модное, в отличие от консервативной классики, быстро становится старомодным.
Читайте наши другие разборы проектов:
- Дом для холостяка: логово комфорт-класса за 2 805 000 ₽ из арболита.
- Хрущевка для одного: ультрабюджетная дача за 1 880 000 ₽ из СИП-панелей.
- Семейный дом с гаражом-мастерской за 7 501 409 ₽.
- Каркасно-панельный дом с выставки за 11 620 688 ₽.
- Г-образный барнхаус за 10 млн рублей с пристройкой.
- Домик с детского рисунка за 8 642 225 ₽.
- Модульный дом за 5 960 000 ₽.
- Одноэтажный дом из СИП-панелей за 3 309 000 ₽.
- Дом из газобетона за 7 150 000 ₽.
- Евротрешка из клееного бруса за 3 995 100 ₽.
Больше материалов о покупке квартир и домов, обустройстве и ремонтах — в нашем телеграм-канале «Свой угол». Подписывайтесь, чтобы ничего не пропустить: @t_nedviga




























